Top investment: Refurbished station building with high yield, brewery, kiosk & 4 separate apartments
Top investment: Refurbished station building with high yield, brewery, kiosk & 4 separate apartments
42799 Leichlingen, House for sale
Video
Contact details
-
NameMrs Rosemarie Waldherr
-
Companyhome4you - eine Marke der more4you-cologne GmbH
-
AddressCardinalstraße 5
50670 Köln -
E-mail
-
Phone
exclusive, Top offer
Object data
-
Property ID2021-26DE
-
Property typeHouse
-
Address42799 Leichlingen
-
Floors in the house3
-
Living area approx.800 m²
-
Usable area approx.89.59 m²
-
Total surface area approx.889.59 m²
-
Plot approx.663 m²
-
Rooms25
-
Bedrooms9
-
Bathrooms4
-
Separate WC2
-
Terraces1
-
Primary energy supplierGas
-
Year of construction1880
-
StateModernised
-
Petspermitted
-
Statustenanted
-
Total parking spaces26
-
Buyer's commission3,00 % des Kaufpreises zzgl. gesetzlicher MwSt., fällig mit Beurkundung des Kaufvertrags
Es besteht die gesetzliche Pflicht zur Provisionsteilung nach § 656c BGB, Käufer und Verkäufer zahlen 3 % zzgl. gesetzlicher MwSt von 19 % vom notariell beurkundeten Kaufpreis.3,57 % (inkl. 19 % MwSt.) vom Kaufpreis. Zu zahlen vom Käufer. -
Purchase Price1,490,000 EUR
Features
- ✓ Basement
- ✓ Cable-/Sat-TV
- ✓ Commercially usable
- ✓ Heritage-protected
- ✓ Outdoor parking space
- ✓ Separate WC
- ✓ Terrace
Energy certificate
-
Energy certificateNot required
Property description
Description
Top investment in residential-commercial building at a price per square meter of EUR 1,675.
The imposing railroad station dating from 1880 is highly frequented all year round and is a central point of contact in Leichlingen and the entire region. It combines historical character with modern functionality and offers a wide range of business and private uses.
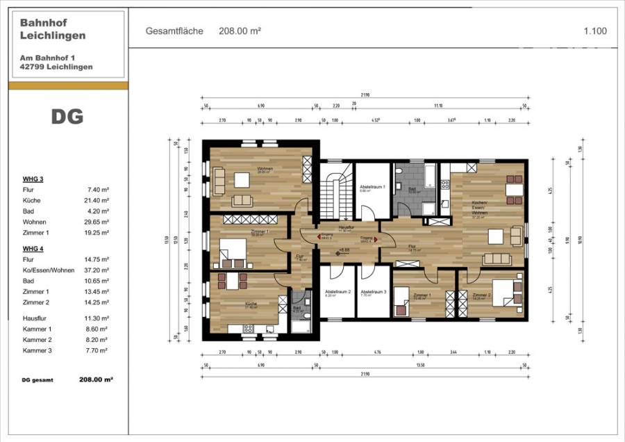
Following a comprehensive core renovation in 1996 and the modernization of the last apartment in 2021, the property is in very good condition. It comprises four completely renovated apartments as well as restaurant and event space. A rentable area of approx. 800 m² is thus available on a 663 m² plot, supplemented by outdoor facilities and a beer garden.
The nationally renowned "Aloysanium" brewery on the ground floor with its own event hall and a separate kiosk ensure high profitability, also for the operators. Numerous travelers, as well as residents in the region, love the restaurant's hearty cuisine and some come from further afield. An ongoing lease secures your investment.
The 4 currently well-let apartments ensure stable basic financing and are also ideally suited as operator or employee apartments.
The calculation of the areas is:
400 sqm apartments, 489.59 sqm gastronomy and usable space.
All units are fully let and the building currently generates an annual net rent of € 73,500. There is potential for rent increases.
The location offers excellent connections to the surrounding cities such as Cologne, Düsseldorf, Leverkusen and the Ruhr area.
In combination with the approved segregation for part ownership, the property offers excellent investment opportunities and long-term prospects.
A valuation report is available, which means that financing can even be provided at 100 % with the appropriate credit rating.
Equipment
The listed building offers a well thought-out and versatile layout that is ideal for both commercial and residential use. On the first floor there is a spacious catering area of 235 m², equipped with a professional kitchen, a central bar system and seating for approx. 150 people. The offer is complemented by an event hall with space for 100 people, a beer garden with 60 seats and a separate kiosk with 65 m².
The 4 renovated apartments, with areas between 85 m² and 115 m², are characterized by high ceilings, wooden floorboards, lattice windows and stylish doors.
The basement area offers additional storage rooms, cold rooms and separate WC facilities. A gas central heating system supplies the restaurant areas, while the four apartments on the upper floors are each equipped with modern gas condensing boilers and ensure a high level of energy efficiency.
The building also has a spacious vaulted cellar, 26 secure parking spaces and a small, unrenovated signal box, which offers further potential, e.g. as a panoramic café.
A division into part ownership has been prepared and the property can be divided immediately after purchase.
Miscellaneous
Note: Illustrations, photos & sample views contain details of execution, furnishings and views for better clarification, some of which may differ in the final execution, are not included in the offer, or are part of a separate negotiation/offer.
The binding basis for this is the later building description, the option contract and/or the notarial certification. if you are interested, please ask our office for our detailed exposé. Do you prefer a classic print exposé? Please contact us!
We would be happy to arrange a first, impressive viewing appointment for you. Convince yourself of the exclusivity and uniqueness of this property in a relaxed atmosphere and let the impressions on site take effect in peace and quiet.
An important note on the sensitive topic of "EU-DSGVO":
If you send us your data via a real estate portal (e.g. immobilienscout24.de), your data will only be stored for four weeks to enable us to send you the brochure and arrange an appointment to view the property. After the four weeks have expired, your data will be irrevocably deleted! We will not send you any new offers or an unsolicited newsletter.
Of course, you can enter your real estate request in our database permanently, free of charge and without obligation. In this way, you will be automatically informed about new properties in the future. Please visit our own homepage. There you will find the link "Search request" in the footer or simply use the following link: https://home4you.info
The entire home4you real estate team in Cologne and Mallorca would like to thank you for your trust!
Location
The location of this property impresses with its central and excellently connected position in Leichlingen, right next to the train station. The town offers a perfect combination of urban infrastructure and natural surroundings.
The surroundings are ideal for residents and investors alike:
The high frequency of visits to the train station, as well as the connected public transport system, make the station the object of desire not far from the city center.
A kindergarten is just 1.5 km away and the elementary school is only 350 m away. Secondary schools such as the Realschule (1.3 km) and the Gymnasium (1.4 km) are also in the immediate vicinity - a great advantage for the apartments as well as the restaurants and kiosk.
The transport links leave nothing to be desired. The train station offers fast connections to surrounding cities such as Cologne, Düsseldorf and Wuppertal. The A3 highway is only 2.3 km away and makes for easy access by car. Düsseldorf Airport is just 32 km away and can be reached in around 30 minutes - ideal for commuters and frequent travelers.
The surrounding area also impresses with its diversity: Leichlingen is known for its high quality of life and combines urban comfort with rural idyll. The town center offers numerous shopping opportunities, restaurants and a popular weekly market. At the same time, the surrounding nature and recreation areas, especially along the Wupper, invite you to go for walks, bike rides or relaxed weekend excursions.
Thanks to this unique mix of excellent infrastructure, educational facilities in the immediate vicinity and a wide range of leisure activities, Leichlingen is an attractive and lively place to live that offers both tranquillity and access to the region's vibrant cities.
Kindergarden 1.50 km | Elementary school 350 m | Hauptschule 4.76 km | Realschule 1.30 km | Gymnasium 1.40 km | Airport 32 km | Highway 2.30 km | City trains 14.18 km | Bus 30 m | Shopping facilities 3.88 km | Restaurants 10 m
42799 Leichlingen, Germany (view on Google Maps)








































