Atención inversores: Activo edificio de la estación de tren con el máximo rendimiento, catering, quiosco y 4 pisos
Atención inversores: Activo edificio de la estación de tren con el máximo rendimiento, catering, quiosco y 4 pisos
42799 Leichlingen, Casa Se vende
Vídeos
Datos de contacto
-
NombreHerr Manuel Maschke
-
Empresahome4you - eine Marke der more4you-cologne GmbH
-
DirecciónCardinalstraße 5
50670 Köln -
E-mail
-
Teléfono
exclusivamente, Oferta superior
Datos del inmueble
-
ID de propiedad1990-25DE
-
Tipo de inmuebleCasa
-
Dirección42799 Leichlingen
-
Plantas de la casa3
-
Superficie habitable aprox.800 m²
-
Superficie útil aprox.89,59 m²
-
Superficie total aprox.889,59 m²
-
Terreno aprox.663 m²
-
Habitaciones25
-
Dormitorios9
-
Baños4
-
Aseo separado2
-
Terrazas1
-
Principal fuente de energíaGas
-
Año de construcción1880
-
EstadoModernizado
-
Mascotaspermitido
-
Estadoalquilado
-
Total de plazas de aparcamiento26
-
Comisión del comprador3,00 % des Kaufpreises zzgl. gesetzlicher MwSt., fällig mit Beurkundung des Kaufvertrags
Es besteht die gesetzliche Pflicht zur Provisionsteilung nach § 656c BGB, Käufer und Verkäufer zahlen 3 % zzgl. gesetzlicher MwSt von 19 % vom notariell beurkundeten Kaufpreis.3,57 % (inkl. 19 % MwSt.) vom Kaufpreis. Zu zahlen vom Käufer. -
Precio de venta1.490.000 EUR
Equipamiento / Características
- ✓ Aseo separado
- ✓ Comercialmente utilizable
- ✓ Edificio protegido
- ✓ Plaza de aparcamiento exterior
- ✓ Sótano
- ✓ Terraza
- ✓ TV por cable/satélite
Certificado energético
-
Certificado energéticoNo se requiere
Descripción del inmueble
Descripción
Inversión de capital única en un edificio residencial/comercial a un precio por metro cuadrado de 1.675 euros.
La imponente estación de ferrocarril, que data de 1880, está muy frecuentada durante todo el año y es el punto central de contacto para Leichlingen y toda la región. Combina el carácter histórico con la funcionalidad moderna y ofrece una amplia gama de posibilidades de uso empresarial y privado.
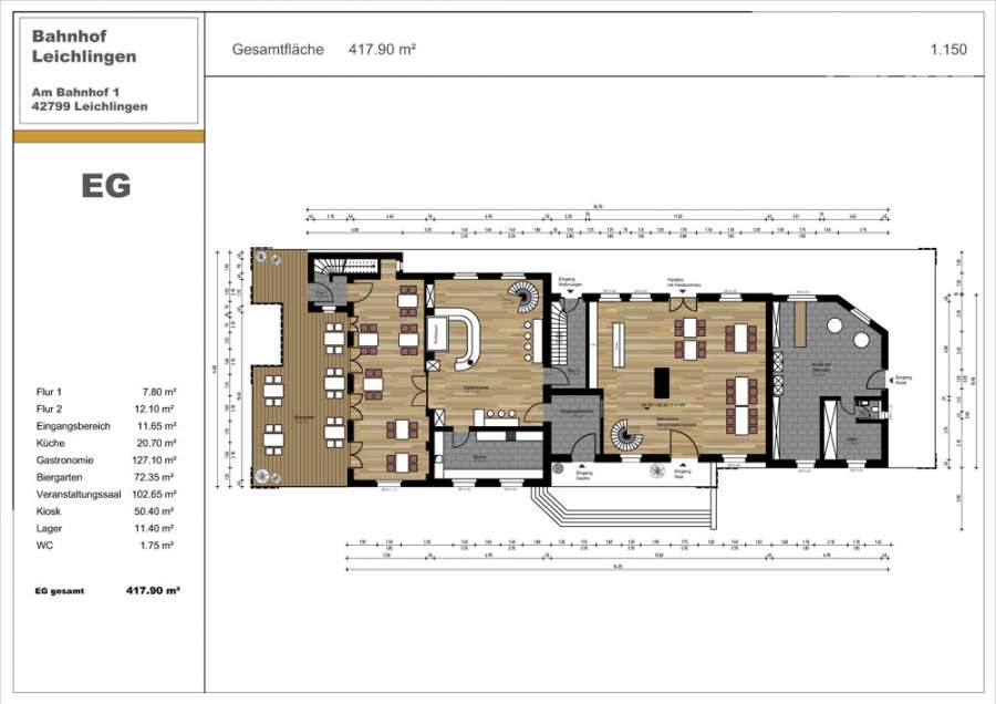
Tras una reforma integral del núcleo en 1996 y la modernización del último piso en 2021, la propiedad se encuentra en muy buen estado. Consta de cuatro pisos completamente reformados, así como de un espacio para catering y eventos. De este modo, se dispone de una superficie alquilable de aproximadamente 800 m² en una parcela de 663 m², complementada con instalaciones al aire libre y una cervecería al aire libre.
La cervecería "Aloysanium", de renombre nacional, situada en la planta baja, con su propia sala de eventos y un quiosco independiente, garantiza una alta rentabilidad, también para los operadores. Numerosos viajeros, así como residentes de la región, adoran la abundante cocina del restaurante y algunos vienen de más lejos.
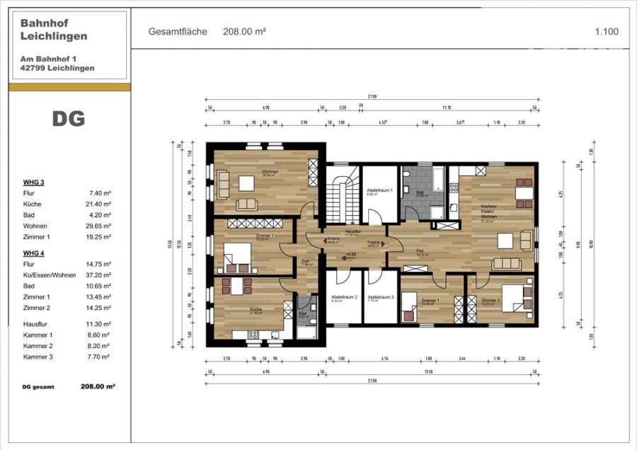
Los 4 pisos, que actualmente están bien alquilados, garantizan una financiación básica estable y también son idóneos como pisos para operarios o empleados.
El cálculo de las superficies es:
400 m² de pisos, 489,59 m² de espacio útil y de restauración.
Todas las unidades están totalmente alquiladas y el edificio genera actualmente un alquiler neto anual de 73.500 euros. Existe la posibilidad de aumentar el alquiler.
La ubicación ofrece excelentes conexiones con ciudades vecinas como Colonia, Düsseldorf, Leverkusen y la región del Ruhr.
En combinación con la segregación autorizada para la propiedad parcial, la propiedad ofrece excelentes oportunidades de inversión y perspectivas a largo plazo.
Equipamiento
El edificio protegido ofrece una distribución bien pensada y versátil, ideal tanto para uso comercial como residencial. En la planta baja hay una amplia zona de restauración de 235 m², equipada con una cocina profesional, un sistema de bar central y asientos para unas 150 personas. La oferta se complementa con una sala de eventos con espacio para 100 personas, una cervecería al aire libre con 60 plazas y un quiosco independiente de 65 m².
Los 4 pisos renovados, con superficies de entre 85 m² y 115 m², se caracterizan por sus techos altos, suelos de madera, ventanas con parteluz y puertas elegantes.
El sótano dispone de almacenes adicionales, cámaras frigoríficas y aseos separados. Un sistema de calefacción central de gas abastece las zonas de restauración, mientras que los cuatro pisos de las plantas superiores están equipados con modernas calderas de condensación de gas y garantizan un alto nivel de eficiencia energética.
El edificio también cuenta con un espacioso sótano abovedado, 26 plazas de aparcamiento vigilado y una pequeña caseta de señales sin renovar que ofrece más posibilidades, por ejemplo, como cafetería con vistas.
Varios
Nota: Las ilustraciones, fotos y vistas de muestra contienen detalles de ejecución, mobiliario y vistas para una mejor aclaración, algunos de los cuales pueden diferir en la ejecución final, no están incluidos en la oferta, o son parte de una negociación / oferta por separado.
La base vinculante para ello es la posterior descripción del edificio, el contrato de opción y/o la escritura notarial; si está interesado, solicite en nuestra oficina nuestro exposé detallado. ¿Prefiere un informe impreso clásico? Consúltenos.
Estaremos encantados de concertar para usted una primera e impresionante cita de visita. Convénzase de la exclusividad y singularidad de esta propiedad en un ambiente relajado y deje que las impresiones in situ surtan efecto con toda tranquilidad.
Una nota importante sobre el delicado tema de la "EU-DSGVO":
Si nos envía sus datos a través de un portal inmobiliario (p. ej. immobilienscout24.de), sus datos sólo se almacenarán durante cuatro semanas para que podamos enviarle el folleto y concertar una cita para ver el inmueble. Una vez transcurridas las cuatro semanas, sus datos se borrarán irrevocablemente. No le enviaremos nuevas ofertas ni un boletín informativo no solicitado.
Por supuesto, puede introducir su solicitud de propiedad en nuestra base de datos de forma permanente, gratuita y sin compromiso. De este modo, se le informaría automáticamente sobre nuevas propiedades en el futuro. Visite nuestra propia página web. Allí encontrará el enlace "Solicitud de búsqueda" en el pie de página o simplemente utilice el siguiente enlace: https://home4you.info
Todo el equipo de home4you Immobilien en Colonia y Mallorca le agradece su confianza.
Ubicación
La ubicación de esta propiedad impresiona por su posición céntrica y excelentemente comunicada en Leichlingen, justo al lado de la estación de tren. La localidad ofrece una combinación perfecta de infraestructura urbana y entorno natural.
El barrio es ideal tanto para residentes como para inversores:
La alta frecuencia de visitas a la estación de tren, así como el sistema de transporte público conectado, hacen de la estación el objeto de deseo no muy lejos del centro de la ciudad.
A sólo 1,5 km se encuentra una guardería y a 350 metros la escuela primaria. Escuelas secundarias como la Realschule (1,3 km) y el Gymnasium (1,4 km) también se encuentran en las inmediaciones - una gran ventaja tanto para los pisos como para los restaurantes y quioscos.
Las conexiones de transporte no dejan nada que desear. La estación de ferrocarril ofrece conexiones rápidas con las ciudades de los alrededores, como Colonia, Düsseldorf y Wuppertal. La autopista A3 está a sólo 2,3 km, lo que facilita el acceso en coche. El aeropuerto de Düsseldorf está a sólo 32 km y se puede llegar en unos 30 minutos, ideal para viajeros frecuentes.
Los alrededores también destacan por su diversidad: Leichlingen es conocida por su alta calidad de vida y combina el confort urbano con el idilio rural. El centro de la ciudad ofrece numerosas tiendas, restaurantes y un popular mercado semanal. Al mismo tiempo, la naturaleza y las zonas de recreo de los alrededores, especialmente a lo largo del Wupper, invitan a dar paseos, hacer excursiones en bicicleta o relajadas excursiones de fin de semana.
Gracias a esta mezcla única de excelentes infraestructuras, instalaciones educativas en las inmediaciones y una amplia oferta de ocio, Leichlingen es un lugar atractivo y animado para vivir que ofrece tanto tranquilidad como acceso a las vibrantes ciudades de la región.
Jardín de infancia 1,50 km | Escuela primaria 350 m | Escuela secundaria 4,76 km | Escuela secundaria 1,30 km | Escuela de gramática 1,40 km | Aeropuerto 32 km | Autopista 2,30 km | Metro/S-Bahn 14,18 km | Autobús 30 m | Centros comerciales 3,88 km | Restaurantes 10 m
42799 Leichlingen, Alemania (ver en Google Maps)








































