Preissensation: Finca in Ortsnähe, 327 m², 2 SZ, 2 Bäder, Pool, Terrassen, Außenküche, Garage, Solar
Preissensation: Finca in Ortsnähe, 327 m², 2 SZ, 2 Bäder, Pool, Terrassen, Außenküche, Garage, Solar
07640 Salines (Ses) (Spanien), Villa zum Kauf
Videos
Kontaktdaten
-
NameFrau Rosemarie Waldherr
-
Firmahome4you - eine Marke der more4you-cologne GmbH
-
AnschriftCardinalstraße 5
50670 Köln -
E-Mail
-
Telefon
courtagefrei, Top Angebot
Objektdaten
-
Objekt-ID2056-26ES
-
ObjekttypenHaus, Villa
-
AdresseCarrer es Porrasaret 100
07640 Salines (Ses)
(Mallorca)
Spanien -
Etagen im Haus2
-
Wohnfläche ca.143,44 m²
-
Nutzfläche ca.183,92 m²
-
Gesamtfläche ca.327,36 m²
-
Grundstück ca.13.658 m²
-
Zimmer3
-
Schlafzimmer2
-
Badezimmer2
-
Balkone1
-
Terrassen2
-
Wesentliche EnergieträgerSolar, Wärmepumpe, Pellet
-
Baujahr2008
-
Zustandgepflegt
-
Haustiereerlaubt
-
Außenstellplätze6
-
Garagenstellplätze2 Stellplätze
-
KäuferprovisionAls Käufer bezahlen Sie bei uns keine Maklerprovision
-
Kaufpreis1.199.000 EUR
Ausstattung / Merkmale
- ✓ Außenstellplatz
- ✓ Balkon
- ✓ Garage
- ✓ Kabel-/Sat-TV
- ✓ Kamin
- ✓ Keller
- ✓ Klimatisiert
- ✓ Swimmingpool
- ✓ Terrasse
- ✓ Vollmöbliert
Objektbeschreibung
Beschreibung
Idyllische Finca in Ses Salines – Ruhe und mediterranes Flair auf 13.658 m² Grundstück
Diese stilvolle Finca in Ses Salines vereint absolute Ruhe und zentrale Lage in idealer Weise. Nur einen kurzen Spaziergang vom Ortskern entfernt, erwartet Sie hier Ihr mediterranes Refugium. Das 2008 erbaute Anwesen bietet eine Wohn- und Nutzfläche von 327 m² und wurde vollständig legal erbaut.
Bereits die imposante Zufahrt beeindruckt mit reichlich Platz für Fahrzeuge und Abstellmöglichkeiten, ideal auch für ein Boot. Der Wohnbereich ist über den Haupteingang direkt von der Terrasse aus zugänglich.
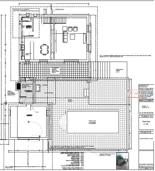
EG:
Im Erdgeschoss genießen Sie einen lichtdurchfluteten Wohnbereich mit einer offenen Küche und sensationellem Weitblick. Von hier aus gelangen Sie direkt in den einladenden Innenhof und auf die großzügige Terrasse. Doppelflügeltüren im Wohnzimmer schaffen eine nahtlose Verbindung zum Außenbereich, wo ein großzügiger Essbereich auf der Terrasse zum Verweilen einlädt. Ein Badezimmer sowie der Aufgang zum Obergeschoss komplettieren das Raumangebot im EG.
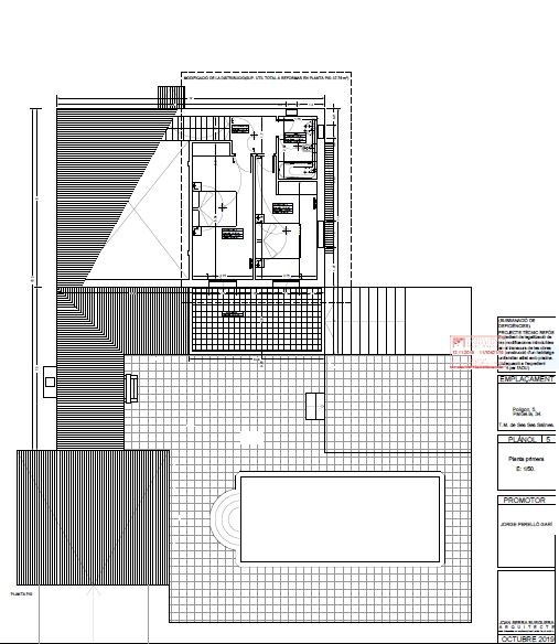
OG:
Das Obergeschoss beherbergt zwei gemütliche Schlafzimmer mit Einbauschränken und einem Duschbad. Beide Schlafzimmer bieten Zugang zur oberen Terrasse, die den Blick über die Landschaft eröffnet und zur Entspannung einlädt.
Der Außenbereich begeistert mit einem großen Pool und einer voll ausgestatteten Außenküche mit Grill – ideal für sommerliche Abende unter freiem Himmel. Für eine autarke Wasserversorgung sorgen zwei eigene Brunnen, und dank der Solarpaneele sind Sie weitgehend energieunabhängig. Die verschiedenen Terrassenebenen laden dazu ein, das mediterrane Ambiente zu genießen. Eine Doppelgarage bietet zusätzliche Nutzungsmöglichkeiten, beispielsweise als separates Appartement.
Der Garten ist ein echter Traum mit Oleanderbüschen, Oliven- und Feigenbäumen, Palmen, Bougainvilleas und Mandelbäumen – eine Oase der Ruhe und Schönheit.
Ausstattung
Die Finca ist mit Klimaanlagen in allen Zimmern, hochwertigen Holzfenstern mit „Climalit“-Doppelverglasung und traditionellen Persianern ausgestattet.
Zusätzliche Sicherheit und Flexibilität:
Ein Notstromaggregat sowie die Anschlussmöglichkeit an das städtische Versorgungsnetz sorgen für eine zuverlässige Energieversorgung und bieten zusätzliche Sicherheit. Weitere Kellerräume bieten Platz für Lagerung und Haustechnik.
Nach rund zwei Jahren ohne Bewohner benötigt das Haus eine kleine Auffrischung – ein wenig Farbe, ein gutes Putz-Team und kleinere Arbeiten bringen das Anwesen innerhalb von 4–6 Wochen wieder zu neuem Glanz.
Unsere Bauprofis beraten Sie gerne und arbeiten zu Festpreisen.
Lassen Sie sich diese Gelegenheit nicht entgehen und verwandeln Sie dieses wunderschöne Anwesen in Ihr neues Zuhause im Herzen Mallorcas!
Sonstiges
Illustrationen, Fotos & Musteransichten enthalten zur besseren Verdeutlichung Ausführungsdetails, Einrichtungsgegenstände und Ansichten, die in der finalen Ausführung zum Teil abweichen können, nicht im Angebot enthalten, oder Bestandteile einer separaten Verhandlung/Angebots sind. Flächenangaben stammen aus dem öffentlichen Kataster oder dem Grundbuch, diese können in Spanien insbesondere bei älteren Gebäuden abweichen. Bitte fragen Sie uns zu weiteren Optionen.
Verbindliche Grundlage zum Kauf bildet der Optionsvertrag und/oder die notarielle Beurkundung.
Bei Interesse erfragen Sie bitte unser ausführliches Exposé oder ergänzende Unterlagen. Sie bevorzugen ein klassisches Print-Exposé? Sprechen Sie uns an!
Gerne ermöglichen wir Ihnen einen ersten, eindrucksvollen Besichtigungstermin. Überzeugen Sie sich in entspannter Atmosphäre von der Exklusivität und Einzigartigkeit dieses Anwesens und lassen Sie die Eindrücke vor Ort in aller Ruhe wirken.
Ein wichtiger Hinweis zum sensiblen Thema "EU-DSGVO":
Wenn Sie uns Ihre Daten über ein Immobilienportal (z.B. immobilienscout24.de) übermitteln, so werden Ihre Daten lediglich für vier Wochen aufbewahrt, um den Exposéversand sowie eine mögliche Terminvereinbarung für eine Objektbesichtigung möglich zu machen. Nach Ablauf der vier Wochen werden Ihre Daten unwiderruflich gelöscht! Wir werden Ihnen weder neue Angebote noch einen nicht erwünschten Newsletter zukommen lassen.
Selbstverständlich können Sie Ihr Immobiliengesuch in unserer Datenbank unverbindlich und kostenfrei dauerhaft hinterlegen. Somit würden Sie in Zukunft durch uns ganz automatisch über neue Objekte informiert werden. Besuchen Sie hierzu bitte unsere eigene Homepage. Dort finden Sie im ´Footer´ den Link "Suchauftrag" bzw. Sie nutzen einfach folgenden Link: https://home4you.info
Das gesamte Team von home4you Immobilien sagt „Herzlichen Dank für Ihr Vertrauen“.
Lage
Ses Salines ist eine Gemeinde im Südosten von Mallorca und ist bekannt für den Traumstrand "Es Trenc", dieser ist nur etwa 4 km entfernt und damit bequem in 5 Minuten erreichbar. Der Name der Gemeinde leitet sich von den noch heute der Salzgewinnung dienenden großen Salinen ab.
Der gesamte Ostteil der Insel ist besonders bekannt für seine wunderschönen Strände und Badebuchten mit gepflegten Sandstränden. Diese sind ausgezeichnet mit der Europäischen Blauen Flagge für gutes Badewasser.
Die traumhaften Naturstrände mit kristallklarem Wasser im Südosten der Insel sind ebenso leicht erreichbar.
Vom Flughafen nach Ses Salines sind es ca. 50 km und auf Grund der seit 2020 bis Campos bestehenden Autobahn und den dann sehr gut ausgebauten Straßen lediglich 30 bis 35 Minuten Fahrzeit.
Der klar strukturierte Ort gehört historisch zu den wohlhabenden Gemeinden der Insel und verfügt daher auch über schöne Bauwerke, deren Restaurierung oftmals wahre Schätze zum Vorschein bringt, dazu gehören Natursteinmauer, Rundbögen oder traumhaft kühle Innenhöfe, die nicht selten Platz für einen Pool bieten.
Er besteht überwiegend aus typischen mallorquinen Stadthäusern bzw. Villen mit entsprechenden Grundstücken. Die meisten Häuser verfügen über kleine, meist erfrischend kühle Innenhöfe (Patio), oder sogar kleine Gärten. Die Häuser werden Großteils ganzjährig bewohnt, jedoch auch als Ferienhäuser verwendet. Dadurch ist die Gemeinde zu jeder Jahreszeit ein angenehmer Ort für einen Aufenthalt und stets belebt, ohne jedoch touristisch überlaufen zu sein.
In Ses Salines finden sie ganzjährig geöffnet neben diversen Restaurants und Bars alle Dinge des täglichen Bedarfs, Supermärkte, Banken, Friseure, Kosmetik, Grünmarkt, Massagen und Post, alle sind gut fußläufig erreichbar.
Der wöchentliche Markt in Ses Salines rundet das Angebot ab.
Große Supermarktketten befinden sich im Nachbarort Campos oder Santany.
Kindergarten 2 km | Grundschule 750 m | Realschule 9,60 km | Gymnasium 9,60 km | Flughafen 48 km | Autobahn 16 km | Zentrum 1 km | Meer 7,80 km
Carrer es Porrasaret 100, Salines (Ses), Spanien (auf Google Maps ansehen)



















































